Инсталляции для писсуаров – это подвесная конструкция, актуальная как для общественного пространства, так и для частного дома и даже квартиры. С ее помощью удается установить настенное сантехническое оборудование, а также скрыть коммуникации.
Использование инсталляции позволяет решить проблему несочетаемости труб и других сантехнических приспособлений с современными отделочными материалами. Также данная конструкция заметно упрощает процесс уборки туалетной комнаты, делая пространство более гигиеничным.
Как выбрать
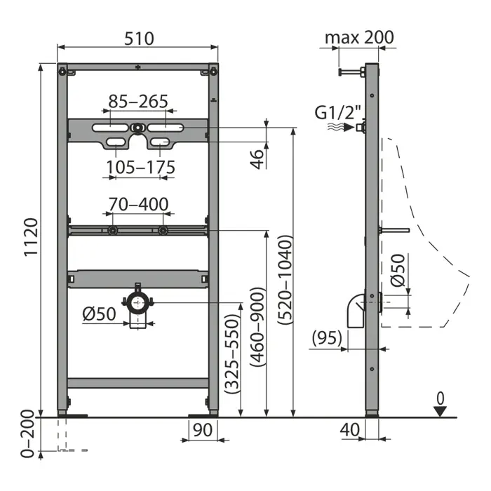
Каждая инсталляция имеет набор характеристик, указывающих на возможность ее эксплуатации в определенных условиях. На что обратить внимание в первую очередь:
-
Максимально допустимая нагрузка. Многие производители закладывают данный параметр с большим запасом – до 350-400 килограмм. При этом масса писсуара чаще всего гораздо ниже, поэтому достичь предела возможностей будет достаточно трудно.
-
Способ установки. Чаще всего инсталляция крепится на стену, но некоторые модели также фиксируются на полу. Последние дороже аналогов, но они гораздо крепче и надежнее.
-
Размер рамы. Обычно используются стандартизированные параметры, но для узких пространств лучше подобрать соответствующие варианты. Их качество от уменьшенных габаритов не пострадает, при этом они не займут много места в небольшом помещении.
-
Конфигурация конструкции. Некоторые инсталляции выпускаются в стандартном исполнении и позволяют только зафиксировать писсуар на стене, но не добавить дополнительных элементов. Другие модели же позволяют интегрировать сенсорные устройства и иные приспособления.
-
Материалы конструкции. Чем лучше они противостоят влиянию внешних факторов, тем дольше ими можно пользоваться без обслуживания, ремонта или полной замены. Чаще всего таким требованиям соответствуют бронзовые и латунные модели, но для частного применения подойдут и аналоги из «нержавейки».
Проще всего подобрать инсталляцию под писсуар, если перед этим проконсультироваться с опытными специалистами. Такие работают в «Центре сантехники».
Наши преимущества
Внимательность к потребностям клиента – не единственная сильная сторона нашей организации. Здесь вы также можете не беспокоиться за качество конструкций, ведь все они сертифицированы. На каждый товар предоставляется длительная гарантия. Задайте интересующие вопросы по номеру: 8 (861) 290-01-10.